Die Entwurfsparameter dieses Einfamilienhauses in Aldrans, sind einerseits bestimmt von einem atemberaubenden Bergpanorama, andererseits von einer Orientierung gegen Süden.
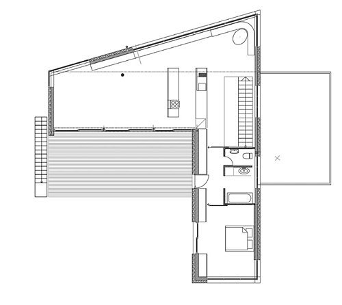
Das Haus, das auch von zwei Familien bewohnt werden könnte, stellt eine Komposition aus einem verputzten Quader und einem 3-dimensionalen Polygon bedeckt mit Faserplatten dar. Das Pultdach passt sich der unsichtbaren Hülle der vorherrschenden gesetzlichen Bestimmungen an. Aufgrund der winterlichen Beschattung im Erdgeschoss wurden dort die Schlafzimmer untergebracht und im Obergeschoss ein großer, offener Wohn- und Essbereich mit vorgelagerter Terrasse geschaffen.